Impressive Grade II Listed Property with Beautiful Original Period Features
Detached House with Four/Five Bedrooms with 3 Ensuites
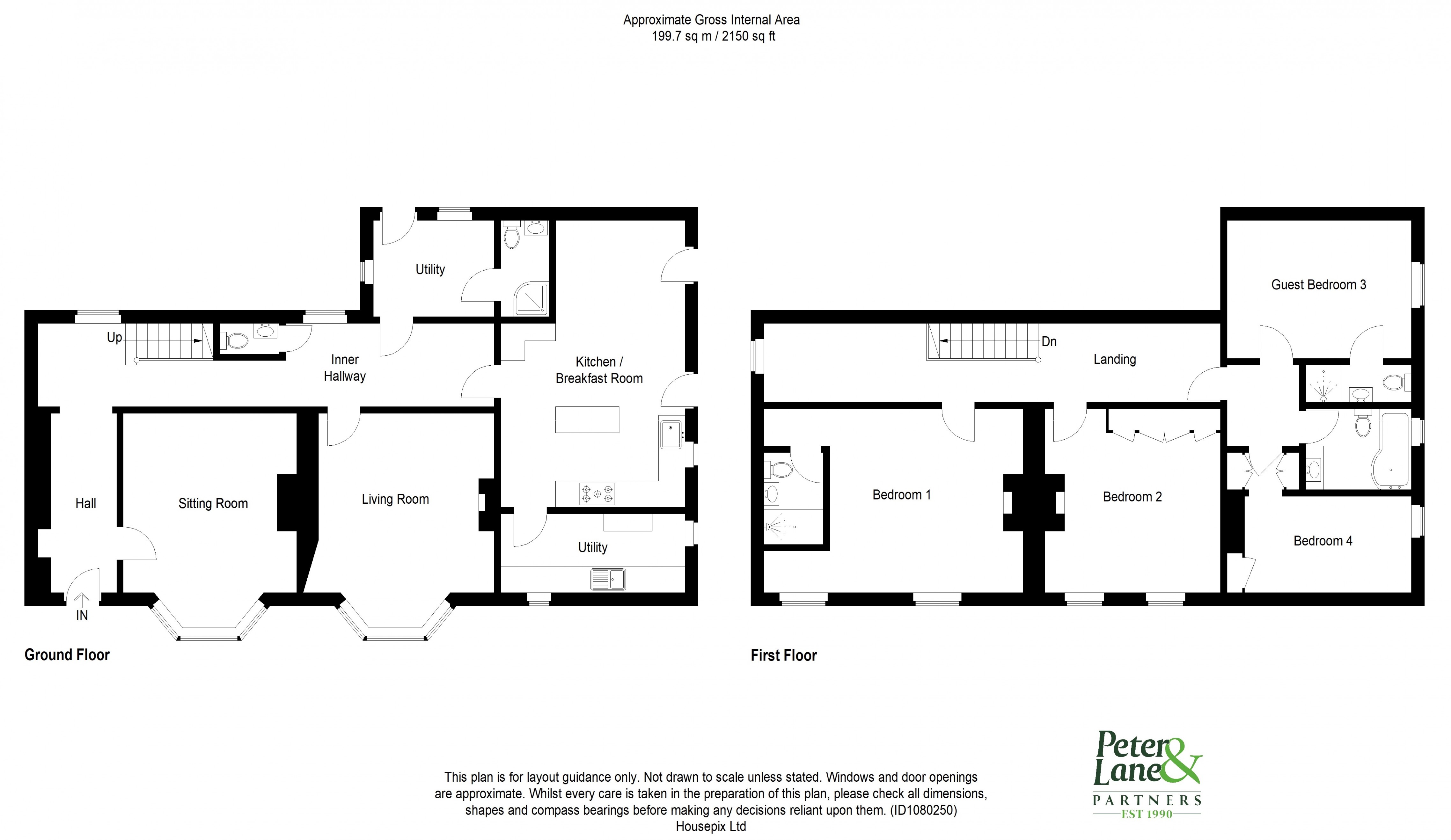
In Excess of 2000sq.feet of Living Space
High Ceilings with Oak Flooring and Antique Brass Fittings
Non-Estate Location with Flexible Layout
Sizeable Gardens to Front and Rear
Ample Parking With Option For More Space
Walking Distance Of Station And Town Centre
Viewing Strictly By Appointment Only
Dating back to 1826 occupying a superb position this remarkable home has been vastly improved and modernised by the current owners. The property now cleverly combines modern day living in a stunning Georgian period property making it an incredible home allowing a purchaser to put their own stamp on it. Offered for sale with no forward chain.
Solid Timber Door With Fan Light Above To
Reception Hall
A large 'L' shaped space with high ceilings, two sash windows to rear aspect, two radiators, recessed storage cupboard with granite surface, five wall light points, coats hanging area with bench, stairs to first floor.
Cloakroom
Fitted in a two piece suite comprising low level WC, wash hand basin, tiled flooring.
Lounge
16' 4" into bay x 13' 0" (4.98m x 3.96m)
Walk in bay window to front aspect, picture rail, high ceiling, wall light point, central feature fireplace with timber mantle and surround with granite hearth. three double sockets with USB points, wooden flooring.
Dining Room
16' 4" into bay x 13' 1" (4.98m x 3.99m)
Walk in bay window to front aspect, high ceiling, picture rail, wall light point, serving hatch to Kitchen, central feature fireplace with timber surround and tiled hearth, radiator, two double sockets with USB points, wooden flooring.
Study
8' 9" x 7' 4" (2.67m x 2.24m)
A double aspect room with windows to side and rear aspects, door to rear, radiator, wooden flooring.
Shower Room
Fitted in a three piece suite comprising low level WC, vanity wash hand basin, shower cubicle with drench style shower and hand held attachment, complementing tiling, tiled flooring, heated towel rail, window to rear aspect.
Kitchen/Breakfast Room
13' 7" x 13' 6" (4.14m x 4.11m)
Window and door to side aspect opening into a side garden, re-fitted in a comprehensive range of base and wall mounted cabinets with complementing granite work surfaces and up-stands, drawer units, one and a half bowl single drainer stainless steel sink unit with mixer tap, integrated dishwasher, dual fuel oven with extractor hood over, wine rack, central island with granite work surface, pan drawers, tiled flooring.
Breakfast Area
8' 9" x 7' 2" (2.67m x 2.18m)
Door to garden, radiator, two wall light points, tiled flooring.
Utility Room
13' 6" x 5' 9" (4.11m x 1.75m)
A double aspect room with windows to front and side aspects, re-fitted in a range of base and wall mounted units with stainless steel single drainer sink unit with mixer tap, space and plumbing for washing machine, space for tumble dryer, cupboard housing gas fired central heating boiler, complementing granite work surface and up-stands, broom cupboard, radiator, two double sockets with USB points, tiled flooring.
First Floor Split Level Landing
Window to side aspect, central heating thermostat, two radiators, exposed floor boards, steps leading down to Secondary Landing.
Principal Bedroom
14' 4" x 13' 9" (4.37m x 4.19m)
Two windows to front aspect, two radiators, central cast iron feature fireplace, Study Area with desk unit, two double sockets with USB points.
En Suite Shower Room
Circular porthole feature window, fitted in a three piece suite comprising low level WC, wash hand basin, double shower cubicle with drench style shower head and hand held attachment, aqua-boarding, heated towel rail, shaver point.
Bedroom 2
13' 5" x 13' 0" (4.09m x 3.96m)
Two windows to front aspect, two radiators, three double sockets with USB points, a range of free-standing wardrobes, central feature cast iron fireplace with mantle and surround, exposed floor boards.
Secondary Landing
Two double storage cupboards with granite work surfaces, leading to Guest Bedroom with En Suite, Bedroom 4 and Family Bathroom.
Guest Bedroom
13' 6" x 9' 9" (4.11m x 2.97m)
Window to side aspect, two double sockets with USB points, radiator.
Guest En Suite Shower Room
Fitted in a three piece suite comprising low level WC, vanity wash hand basin, shower cubicle with drench style shower head and hand held attachment with aqua-boarding, complementing tiling, tiled flooring, heated towel rail.
Bedroom 4
13' 5" x 6' 2" (4.09m x 1.88m)
Window to side aspect, radiator, double socket with USB point.
Family Bathroom
Window to side aspect, fitted in a three piece suite comprising low level WC, vanity wash hand basin, 'P' shaped bath with drench style shower head and mixer tap hand shower, shower screen, aqua-boarding, heated towel rail, shaver point, central cast iron feature fireplace.
Outside
Cast iron gates open into the front garden which is laid to lawn with seating areas, outside tap and lighting, Laurel hedging to the sides and conifer hedging to the front. The property also comes with adequate parking. Side access leads to the rear garden which is enclosed by brick walling providing a high degree of privacy.