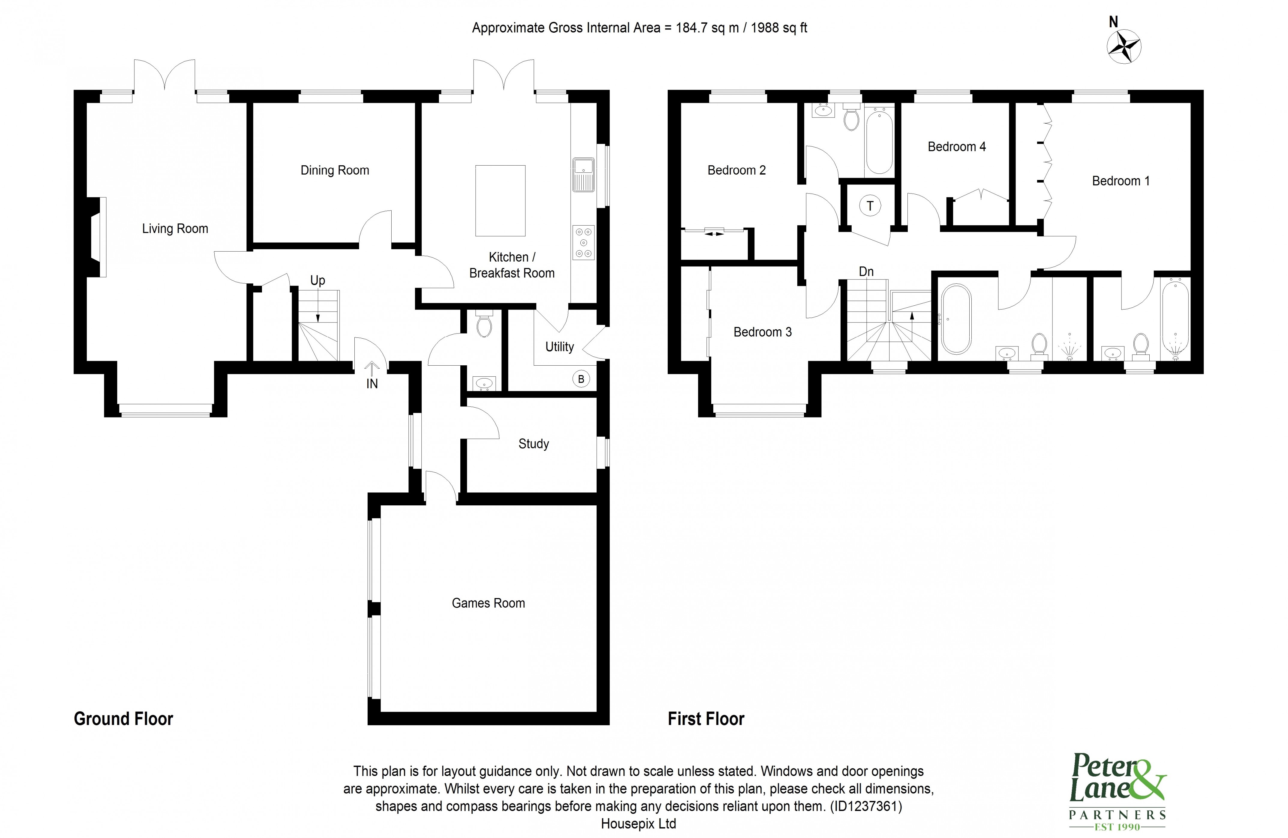
En Suite Shower Room, En Suite Bathroom And Family Bathroom
Four Impressive Reception Rooms
Stunning Kitchen/Breakfast Room
Utility Room And Cloakroom
Private Cul De Sac Setting
Off Road Parking For Four Vehicles
Offered for sale with no forward chain this stunning home by prestigious 'Jersey House Developments' offers fantastic living spaces with high ceilings and equally impressive four/five double bedrooms and two en suites with lovely design elements throughout. Offered with no chain the house should offer a straightforward purchase.
Storm Porch Over
Sold door with glazed inserts to
Reception Hall
Coving to ceiling, wood effect flooring, radiator, stairs to first floor, understairs storage cupboard, double glazed window to front aspect.
Cloakroom
Re-fitted in a two piece suite comprising low level WC, vanity wash hand basin, radiator.
Study
13' 1" x 7' 3" (3.99m x 2.21m)
Double glazed window to side aspect, coving to ceiling, radiator.
Dining Room
12' 2" x 10' 2" (3.71m x 3.10m)
Double glazed window to rear aspect, coving to ceiling, radiator.
Living Room
23' 0" x 12' 2" (7.01m x 3.71m)
A double aspect room with double glazed bay window to front aspect and double glazed French doors to rear aspect, coving to ceiling, two radiators, central stone fireplace with inset log burner and feature display recesses over.
Games Room/Bedroom 5
16' 5" x 15' 9" (5m x 4.8m)
Recessed downlighters, two contemporary vertical radiators, access to loft space, full height double glazed windows to front aspect
Kitchen/Breakfast Room
16' 5" x 15' 9" (5.00m x 4.80m)
Re-fitted in a range of cabinets and drawer units, solid wood work surfaces and up-stands, one and a half bowl single drainer sink unit mixer tap, central island/breakfast bar with base cupboards and drawer units with solid wood work surface, full height fridge and freezer, two electric ovens, induction hob with extractor fan over, integrated dishwasher, a double aspect room with double glazed window to side and double glazed windows and French doors to rear aspect, radiator, ceiling spot lights, wood effect flooring.
Utility Room
6' 11" x 5' 11" (2.11m x 1.80m)
Fitted in a range of base and wall mounted units with wooden work surface, wood effect flooring, plumbing for washing machine, space for tumble dryer.
First Floor Landing
Double glazed window to front aspect, radiator, airing cupboard housing hot water cylinder.
Principal Bedroom
13' 1" x 12' 6" (3.99m x 3.81m)
Double glazed window to rear aspect, coving to ceiling, radiator, range of built in wardrobes.
En Suite Shower Room
Re-Fitted in a three piece suite comprising low level WC with concealed cistern, vanity wash hand basin, double shower cubicle, shower unit, complementing tiling, double glazed window, radiator, ceramic tiled flooring.
Guest Bedroom
11' 10" x 11' 6" (3.61m x 3.51m)
Double glazed window to rear aspect, coving to ceiling, radiator, a range of built in wardrobes.
Guest En Suite Bathroom
Re-fitted in a three piece suite comprising low level WC, vanity wash hand basin, panel bath with mixer tap hand shower, complementing tiling, double glazed window to rear aspect, radiator, ceramic tiled flooring.
Bedroom 3
10' 2" x 9' 3" (3.10m x 2.82m)
Double glazed window to front aspect, coving to ceiling, built in double wardrobe, radiator.
Bedroom 4
9' 2" x 7' 10" (2.79m x 2.39m)
Double glazed window to rear aspect, coving to ceiling, radiator, double built in wardrobe.
Family Bathroom
Re-fitted in a four piece suite comprising low level WC with concealed cistern, vanity wash hand basin, free-standing bath, shower enclosure, complementing tiling, ceiling spot lights, double glazed window, ceramic tiled flooring.
Outside
The driveway provides off road parking for a number of vehicles with a block paved path and outside lighting. Side gated access leads to the rear garden which is laid to lawn with a tiled patio terrace and enclosed by panel fencing.
Buyers Information
To conform with government Money Laundering Regulations 2019, we are required to confirm the identity of all prospective buyers. We use the services of a third party, DezRez Legal, who will contact you directly. They will need the full name, date of birth and current address of all buyers. There is a nominal charge payable direct to DezRez Legal. Please note that we are unable to issue a Memorandum of Agreed Sale until the checks are complete.