Well Positioned Individual Residential Building Plot
Ideal Self Build Opportunity
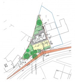
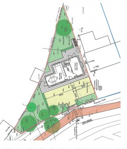
Planning Reference 22/02143/OUT
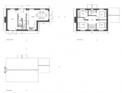
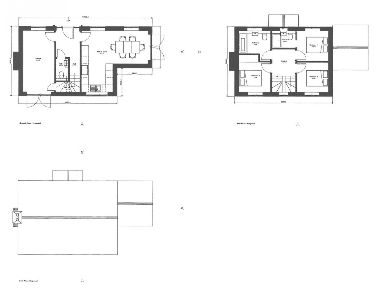
Outline Planning Consent For A Single Three Bedroom Detached Dwelling
Desirable Village Location
Close To Village Green And Village Services
All Plans And Information Are Available At Huntingdon District Council Planning Portal
This well positioned, individual building plot has outline planning permission for a single two storey dwelling. Located close to the village green and primary school it offers a convenient and central location in an established corner of the village. Ideal self build opportunity. Viewing on site strictly by appointment.
Description
A rare opportunity to acquire an individual building plot centrally located within this ever popular village setting. Close to the village green and primary school, the plot occupies a desirable and appealing location.
Planning
Outline planning permission has been granted for an individual three bedroom detached home over two storeys.
Tenure
Freehold with vacant possession upon completion.
Purchasers will be liable to pay the CIL - Community Infrastructure Levy - to Huntingdon District Council at the standard rate of £85.00 per square metre.