Desirable Village Location With Excellent Transport Links
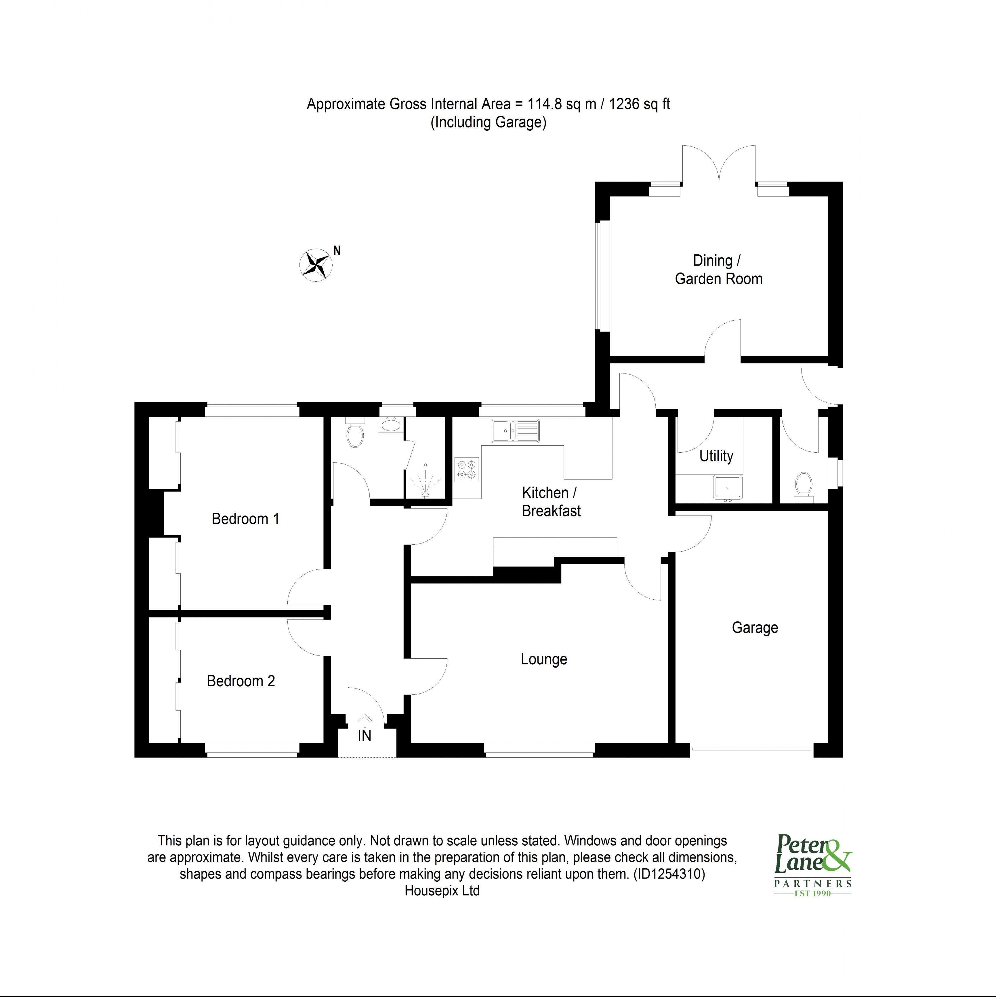
This beautiful three bedroom bungalow has been vastly improved and modernised by the current owners and provides versatile accommodation with ample parking, garaging and set in a generous sized plot with field views.
Composite Glazed Panel Door To
Entrance Hall
Coving to ceiling, laminate flooring, access to part boarded loft space with ladder and lighting,
Living Room
17' 3" x 10' 9" (5.26m x 3.28m)
Double glazed window to front aspect, coving to ceiling, two radiators, two wall light points, wall mounted remote controlled electric feature fire.
Kitchen/Breakfast Room
14' 6" x 9' 7" (4.42m x 2.92m)
Re-fitted in a range of base and wall mounted units with under unit lighting and complementing work surfaces, drawer units, one and a half bowl single drainer sink unit, breakfast bar, electric oven and electric hob with cooker hood over, space and plumbing for dishwasher, recessed down-lighters, coving to ceiling, radiator, laminate flooring.
Rear Hall
Double glazed window to side aspect and UPVC double glazed door to side, coving to ceiling, radiator, laminate flooring.
Bedroom 3
14' 9" x 10' 9" (4.50m x 3.28m)
(Currently used as a Sitting Room) Double glazed windows and double glazed French doors to rear aspect, coving to ceiling, radiator, laminate flooring.
Utility Room
6' 3" x 5' 1" (1.91m x 1.55m)
Coving to ceiling, fitted in a range of base and wall mounted units with complementing work surfaces and tiling, circular sink unit, space and plumbing for washing machine, space for tumble dryer, laminate flooring.
Bedroom 1
13' 1" x 10' 1" (3.99m x 3.07m)
Double glazed window to rear aspect, coving to ceiling, remote controlled ceiling fan light, two built in wardrobes with sliding doors, hanging and shelving.
Bedroom 2
10' 1" x 8' 7" (3.07m x 2.62m)
Double glazed window to front aspect, coving to ceiling, remote controlled ceiling fan light,
wardrobes with sliding doors, hanging and shelving,.
Family Shower Room
Double glazed window to rear aspect, fitted in a three piece suite comprising low level WC with concealed cistern, vanity wash hand basin, double shower cubicle with glazed shower screen and shower unit over, complementing tiling, radiator, tiled flooring.
Outside
The property is approached via a gravel driveway providing off road parking for several vehicles leading to the Single Garage with up and over door, power, lighting, radiator, personal door to Kitchen. The front garden is laid to lawn and stocked with mature plants, outside lighting, enclosed by post and rail fencing. Side gated access leads to the rear garden which has a patio seating area, laid to lawn with stocked borders, outside tap and lighting, covered oil central heating boiler serving hot water system and radiators, oil tank, summer house and garden shed.
Buyers Information
To conform with government Money Laundering Regulations 2019, we are required to confirm the identity of all prospective buyers. We use the services of a third party, DezRez Legal, who will contact you directly. They will need the full name, date of birth and current address of all buyers. There is a nominal charge payable direct to DezRez Legal. Please note that we are unable to issue a Memorandum of Agreed Sale until the checks are complete.