This charming extended detached character cottage offers interesting and versatile three/four bedroom accommodation within the centre of this popular village position. Garaging and private gardens. NO CHAIN is being offered.
Glazed Panel Door To
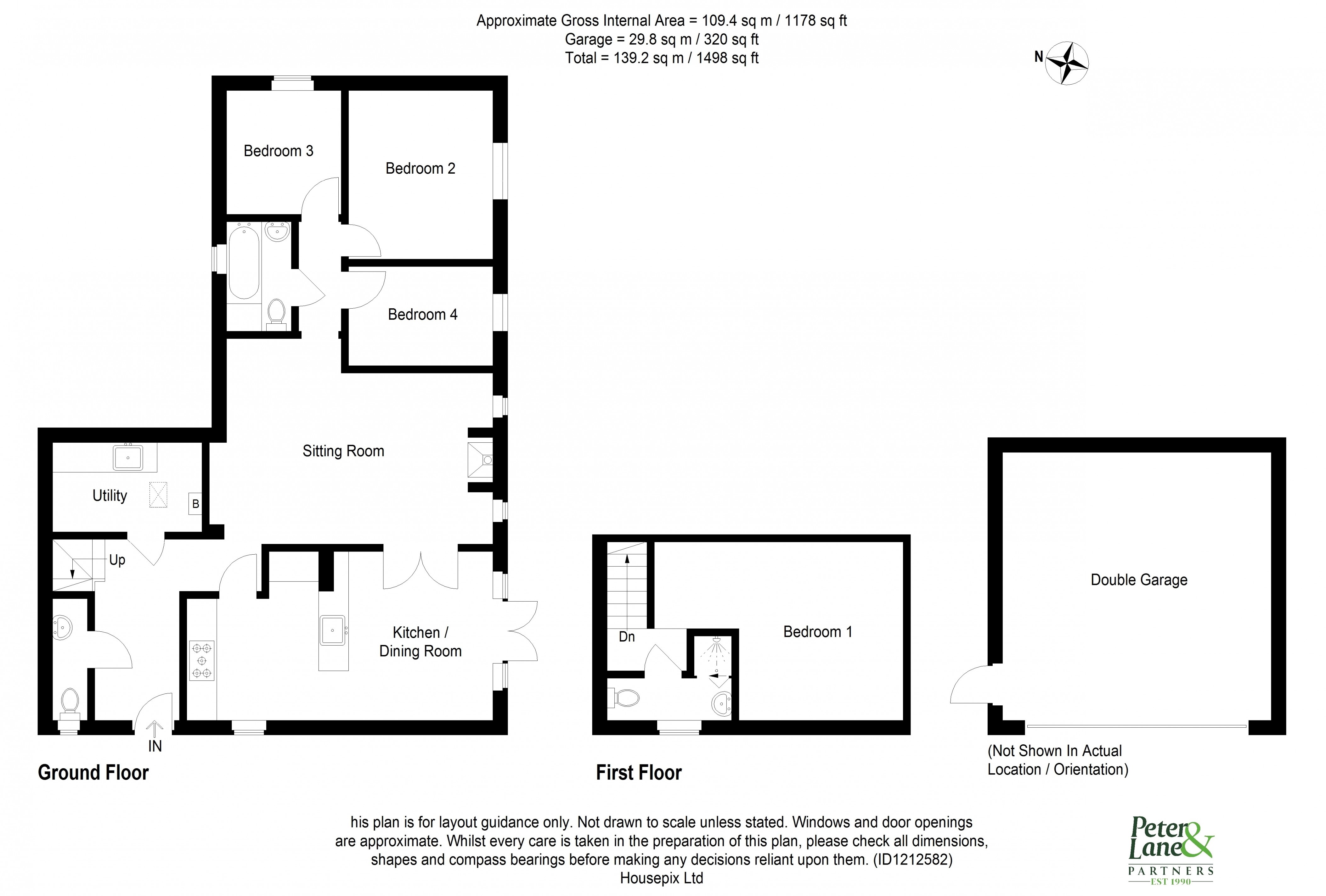
Entrance Hall
12' 4" x 10' 6" (3.76m x 3.20m)
Decorative ceramic floor tiling, double panel radiator, glazed panel door with UPVC side panel to front aspect, coving to ceiling, recessed lighting, stairs to first floor.
Cloakroom
Fitted in a two piece white suite comprising low level WC, wall mounted wash hand basin with tiling, double panel radiator, UPVC window to front aspect, decorative Victoriana floor tiling.
Utility Room
9' 2" x 5' 8" (2.79m x 1.73m)
Fitted in a range of base unit with work surfaces and tiling, appliance spaces, wall mounted gas fired central heating boiler serving hot water system and radiators, LVT flooring in herringbone pattern, fixed display shelving.
Kitchen/Breakfast/Family Room
21' 4" x 11' 5" (6.50m x 3.48m)
A light extended split level space with windows to two aspects, UPVC window to front aspect and French doors accessing garden terrace to the rear, re-fitted in a range of grey-toned Shaker style cabinets with complementing Quartz work surfaces and tiling, space for cooking range, LVT flooring laid in herringbone pattern, inset sink unit with directional mono bloc mixer tap, drawer units, pan drawers, up-stands, recessed lighting, anthracite vertical contemporary radiator, recessed lighting, integrated automatic dishwasher, fridge freezer, dividing central timberwork, part vaulted ceiling line with Velux window to front aspect, additional cabinets and central dividing peninsular unit, glazed internal double doors access
Sitting Room
18' 5" x 13' 3" (5.61m x 4.04m)
Double panel radiator, central fireplace recess with tiled hearth, inset wood burner and timber bressumer above, two picture windows to garden aspect, coving to ceiling, internal door to Entrance Hall.
Bedroom 4/Study
9' 6" x 5' 11" (2.90m x 1.80m)
UPVC window to garden aspect, radiator, coving to ceiling, recessed lighting
Family Bathroom
7' 3" x 4' 6" (2.21m x 1.37m)
Fitted in a three piece white suite comprising low level WC, pedestal wash hand basin, panel bath with independent shower unit fitted over, window to side aspect, ceramic tiled flooring, chrome heated towel rail, extractor, recessed lighting, shaver light point.
Bedroom 2
11' 2" x 9' 8" (3.40m x 2.95m)
Double panel radiator, coving to ceiling, UPVC window to garden aspect.
Bedroom 3
8' 0" x 7' 6" (2.44m x 2.29m)
Coving to ceiling, double panel radiator, UPVC window to garden aspect.
First Floor Landing
Access to insulated loft space, coving to ceiling.
Shower Room
Re-fitted in a three piece white suite comprising low level WC, pedestal wash hand basin with mixer tap and tiling, shaver point, screened shower enclosure with independent shower unt fitted over, recessed lighting, vinyl flooring, UPVC window to front aspect, heated towel rail.
Bedroom 1
16' 7" x 11' 10" (5.05m x 3.61m)
UPVC window to front aspect, two single panel radiators, coving to ceiling, recessed lighting.
Outside
The immediate front garden is laid to shrub borders and enclosed by low wrought iron railings. The rear garden is neatly arranged and hard landscaped planned with low maintenance in mind with an extensive paved terrace, shaped lawn edged in a low retaining brick wall, timber constructed planters, timber shed and a selection of ornamental shrubs and developing trees. The gardens extend to the rear with an area of paving and enclosed by mature boundaries offering a good degree of privacy. There is a Detached Oversized Garage measuring 17' 5" x 8' 9" (5.31m x 2.75m), barn style with up and over door, power and lighting.
Buyers Information
To conform with government Money Laundering Regulations 2019, we are required to confirm the identity of all prospective buyers. We use the services of a third party, DezRez Legal, who will contact you directly. They will need the full name, date of birth and current address of all buyers. There is a nominal charge payable direct to DezRez Legal. Please note that we are unable to issue a Memorandum of Agreed Sale until the checks are complete.